Peter Hofbauer’s private Homepage
Selbstbauprojekte eigene Entwicklungen
Home Erodiermaschine V2  Seite 1 Erodier V2 Seite 2 Erodier V2 Seite 3 Erodier V2 Seite 4 Erodier V2 Seite 5 Impressum Letzte Änderung: 08.Juli 2013 Copyright: frei! Impressum Letzte Änderung: 22.11.2020 Copyright: frei!

Senk-Erodiermaschine, Version 2, Seite 2/5

Home Vorige Seite Nächste Seite
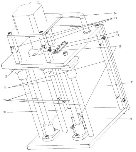
Die Ziffern in den 3D-Zeichnungen bezeichnen die selber angefertigten Teile und Bleche. Fertig bezogene Teile, die keine Bearbeitung benötigen, tragen keine Ziffern. Die Ziffern benennen die dazu gehörenden dxf-Zeichnungen im Download. Diese Zeichnungen sind alle im 1:1-Maßstab gezeichnet. Und  können mit einen 2D-CAD, zum Beispiel QCAD oder das identische LibreCAD bearbeitet werden. Ich habe die Bleche mit meiner CNC angefertigt, deshalb sind die Zeichnungen ohne Bemaßung. Der Z-Antrieb besteht aus zwei 6mm-Alubleche (20,21), die mit 2 8mm-Linearwellen (19) und zwei 8x8mm-Alustangen (14) verschraubt sind. Rückseite besteht auf ein 6mm-Alublech (13), das mit den beiden Alustangen (14) verklebt und Verschraubt sind. Die Z-Achse besteht aus zwei 8mm-Linearwellen (19), die am Schlitten (22) verschraubt und unten auf dem Bodenblech mit zwei Linearbuchsen geführt werden. Die beiden Linaerwellen tragen unten die isolierte Brücke (16) zur Aufnahme der Werkzeuge. Angetrieben wird die Z-Achse mit einer 8mm-Trapezwelle (18), mit Messingmutter am Schlitten (22). Ein Schrittmotor treibt über eine Motorkupplung die Trapezwelle an. Diese Trapezwelle hat eine Steigung von 8mm. Der Schrittmotor wird mit 1/16tel-Schritt betrieben. Pro Schritt bewegt sich die Z-Achse also um 2,5u. Die Trapezwelle wird oben in ein Festlager (28) geführt. Unten ist keine Führung nötig wegen der kurzen Strecke. Die vier verwendeten Kugelumlauf-Lager sind wie die vier Linearwellen und die Trapezwelle mit  Messungmutter preiswerte Teile aus dem Internet-Handel. Die Messingmutter ist nicht gegen Schlupf verspannt. Die Schwerkraft der Z-Achse macht das unnötig. Der kleine Schrittmotor hat die Abmessungen von ca. 28x28x28mm und ist für diesen Zweck mehr als ausreichend. Oben und unten sind Endschalter (15) vorhanden. Der Hub der Z- Achse beträgt 118mm zwischen den Endschaltern.
Rückseite
von Oben
Der Erodierkopf ist noch mit 1mm-Alublech verkleidet und lackiert worden.
Rechte Seite
eingefahren bis oberen Endschalter
Ausgefahren   bis unteren   Endschalter

3. Die Mechanik

3.1. Der Erodierkopf

3.2. Die Hubplatte

Die Hubplatte trägt den Erodierkopf damit dieser aus dem Dielektrikum herausgehoben werden kann. Die Hubplatte wird mit zwei 8mm-Linearwellen an der Frontplatte des Generators montiert.
Die Ziffern in den 3D-Zeichnungen bezeichnen die selber angefertigten Teile und Bleche. Fertig bezogene Teile, die keine Bearbeitung benötigen, tragen keine Ziffern. Die Ziffern benennen die dazu gehörenden dxf-Zeichnungen im Download. Diese Zeichnungen sind alle im 1:1-Maßstab gezeichnet. Und  können mit einen 2D-CAD, zum Beispiel QCAD oder das identische LibreCAD bearbeitet werden. Ich habe die Bleche mit meiner CNC angefertigt, deshalb sind die Zeichnungen ohne Bemaßung. Die Hubplatte besteht aus verklebten 3mm-Alublechen (46+48). Unten ist die “Werkbank” aus 6mm-Alublech (47) mit einen 90-Grad Stahlwinkel (29) montiert. Die Werkbank hat auf der Unterseite eine Ausfräsung. Darin sind Magnete eingegossen. Damit wird ein Werkstückhalter, wenn er am Boden aus Eisen ist, festgehalten. Das Spülrohr fürs Dielektrikum (41,42) ist neben dem Erodierkopf angeordnet. Das Spülrohr soll zusammen mit den Erodierkopf und der Werkbank eine feste Position zum Werkzeug haben. Damit das Einrichten im angehobenen Zustand geht. Die Platte enthält Bohrungen, in welcher die Schraubenköpfe vom Erodierkopf passgenau einrasten. Der Erodierkopf wird mit zwei Schrauben an der Platte befestigt.  Auf der Rückseite sind je zwei 8mm-Kugelumlaufführungen für die zwei Linearwellen. Die Linearwellen sind auf der Front des Generators montiert. Das Sperrblech (45) hält die Platte gegen senkrechtes verrutschen fest. Das Plastikteil (44) verhindert herausfallen des Sperrblechs wenn die ganze Einheit vom Generator getrennt ist. Das Sperrblech ist aus 1mm Messing. Mit Epxydplatte FR4 funktioniert es nicht. Zusätzlich habe ich das Messingblech mit 2mm- Epoxydplatte mechanisch verstärkt. Das Sperrblech wird mit Federn nach oben gezogen. Es waren 2 Federn nötig, je eine links und eine rechts. Weil sich das Messingblech sonst verbiegt. Unter dem Sperrblech ist ein 0,5mm-Eisenblech (34) mit 10mm Abstand montiert. Dieses Blech wird von induktiven Näherungsschalter erkannt. Die Werkbank kann von der Hubplatte getrennt werden, wenn man zum Beispiel einen größeren Abstand vom Werkstück zum Werkzeug benötigt.

3.3. Die Frontplatte

Das Gehäuse des Generators habe ich aus 4mm-Alublech angefertigt. Vermutlich kann man dafür auch einfach einen Schaltschrank in geeigneter Größe verwenden. Wird auch billiger. Den Generator habe ich in Gruppen unterteilt, eine davon ist die komplette Frontplatte.
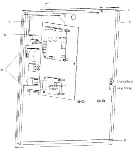
Die Frontplatte besteht aus 4mm-Alublech (35) mit innen aufgeklebten 8x8mm-Quadratstangen (30,33). Für die Erodiereinheit, bestehend aus Erodierkopf und Hubplatte, sind zwei Linearwellen (38) montiert. Unten werden die zwei Linearwellen mit Aluteil (49) fixiert. Oben ist eine abnehmbare Halterung (37). Diese ist abschraubbar damit die Erodiereinheit komplett nach oben herausgezogen werden kann. Über Aluteil (49), zwischen den beiden Linearwellen, ist ein induktiver Näherungsschalter in der Front montiert. Fehlt in der 3D-Zeichnung noch. Das Plastikteil (31) dient als Durchführung für die zwei 6mm- Schläuche für die Druck- und Saugleitung.  Auf der Innenseite ist ein 2mm-Alublech (32) mit den Kontrollrechner und die Schrittmotor-Endstufe. Diese Einheit ist mit Klappbolzen befestigt und kann deshalb für den Service heraus geklappt werden. Diese Klappbolzen sind an zwei Bleche (39) geschraubt, die auf die Frontplatte geklebt sind.
Saugleitung
Frontplatte ohne Erodiereinheit
Erodier V2 Seite 2 Erodier V2 Seite 2