Peter Hofbauer’s private Homepage
Selbstbauprojekte eigene Entwicklungen
Impressum Letzte Änderung: 08.Juli 2013 Copyright: frei! Impressum Letzte Änderung: 16. November 2019 Copyright: frei!

HF-Meßplatz mit Spektrumanalyzer, Meßsender, Wobbler und HF-Voltmeter , Seite 4/7

Der Schaltplan, Beschreibung (3)

Die CPU-Platinen

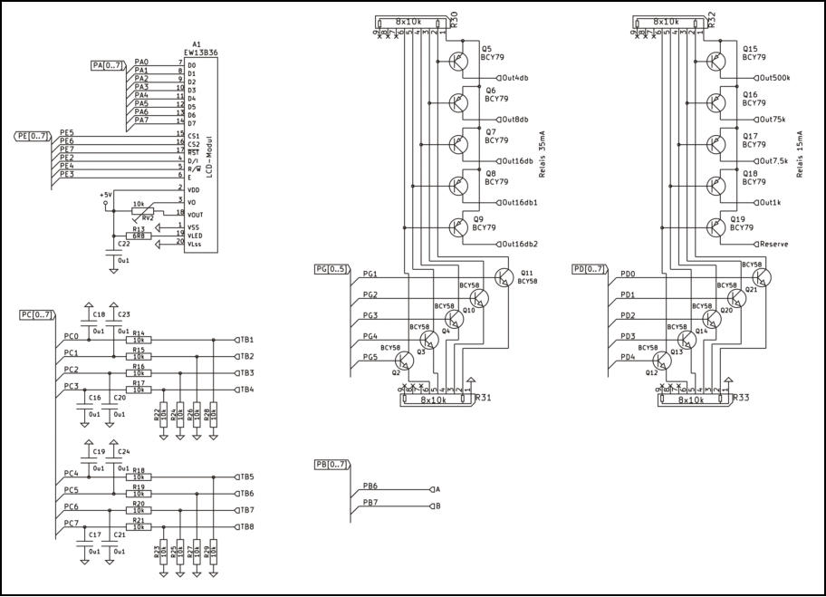
1.) Platine CPP9500 Seite 1. Der Schaltplan ist auf 3 Seiten gezeichnet. Der Prozessor ATMEGA2561 wird über die JTAG-Schnittstelle P1 programmiert. Der integrierte AD- Wandler wird mit einer präzisen Referenzspannung von 4,2V betrieben. Die Auflösung von 10 bit reicht für diesen Zweck aus. Die Meßspannung vom Logarithmierer kommt über X11 zum U1 (TL082). Dieser Teil speichert die Spitzenspannung in C6 bis die Messung fertig ist. Danach wird C6 mit Q1 kurzgeschlossen bis die folgende Frequenz von der PLL eingestellt ist. Dieses Verfahren ist wegen der Direktmischung nötig. Am Ausgang entstehen bei einer Eingansspannung von 0,3 bis 2,7V für den ADW-Eingang (PF0) 0,46 bis 4,15V.
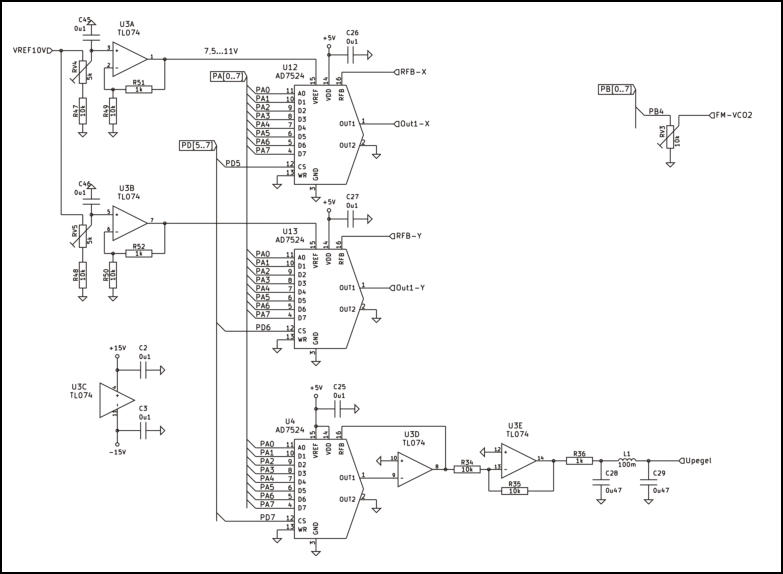
Seite 2. Der Prozessor liefert mit den drei 8-bit ADWs vom Typ AD7524 und den OPs U12 und U13 die Spannungen für die X und Y-Ablenkug der Oszilloskopröhre und mit U4 für die Pegelregelung des Meßsenders. Die Referenzspannung für U12 und U13 werden mit den Trimmpotis RV4 und RV5 eingestellt und mit U3A und U3B  niederohmig gemacht. U4 erhält seine Referenz von der 5V weil hier nicht so genau sein muß. Am Ausgang von U4 folgt ein Spannungsverstärker und dann ein Tiefpass. Dieser Tiefpass ist für die Modulation des Meßsenders nötig. Der Prozessor gibt über den DAW zur 1kHz-Modulation eine Rechteckform zusätzlich zur DC aus. Der Tiefpass macht dann aus der Rechteckform einen recht guten Sinus.
Seite 3. Hier sind die digitalen Ein- und Ausgänge gezeichnet. Die digitalen Ausgänge sind mit einzelnen Transistoren ausgeführt. Warum kein IC? Weil ich viel zu viele Transistoren im Hobbylager habe! Das LCD-Modul ist ein Grafikmodul EW13B36 mit den Kontroller LG128642-SFDWH6V. Die Auflösung beträgt 126 x 64 Pixel, der sichtbare Ausschnitt 60x33mm.
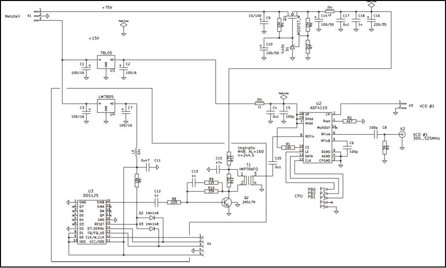
2.) Platine CPP9510 Diese Platine hatte ursprünglich nur den PLL-Regler mit Regelfilter. Das Regelfilter wurde in den VCO#1 verlegt. Der alte Quarzozsillator für die Referenz wurde durch ein DDS-Modul ersetzt. Das DDS-Modul enthält einen 125MHz-Quarzozillator, den DDS-Ic AD9850 und einen Tiefpass. Dieses Modul habe ich fertig bezogen. War übrigens unglaublich preisgünstig. Der Sinusausgang des DDS-Moduls wird mit Q2 (2N5179) verstärkt und über einen HF-Trafo ausgekoppelt. Dieser Trafo vermeidet Störungen von der Betriebspannung. Das PLL-Ic ADF4110 erhält über X2 die Istfrequenz vom VCO#1. Der ADF4110 arbeitet mit festen Teiler. Die Referenzfrequenz vom DDS-Modul bestimmt die Frequenz des VCO#1. Die Frequenz vom DDS-Modul reicht von 12MHz bis 21MHz.  Die etwas seltsam aufwändige Spannungsversorgung auf dieser Platine ist wegen der vielen Änderungen übrig geblieben.
Regelstrom
DDS-Generator
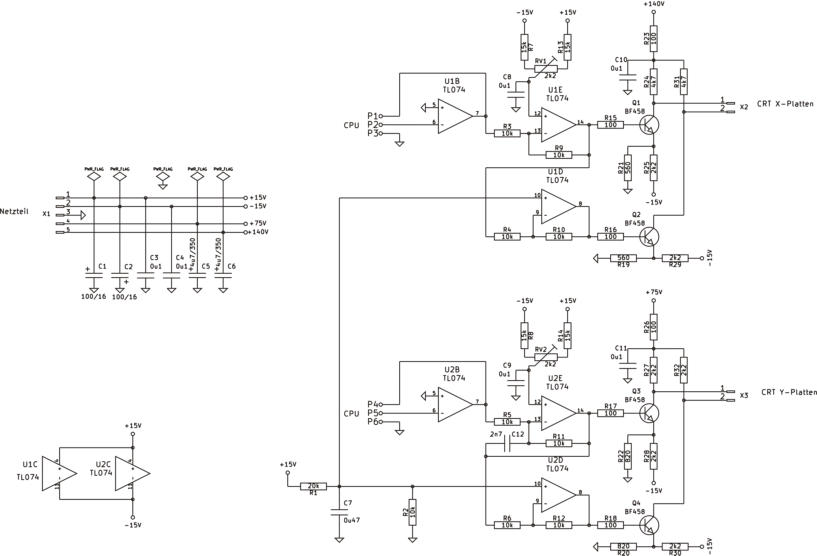
3.) Platine CPP9520 Diese Platine enthält die Endstufen für die X- und Y-Ablenkung der Oszilloskopröhre. Mit den Trimmpotis RV1 und RV2 wird die horizontale und vertikale Lage des Strahls eingestellt. Wegen der digitalen Verarbeitung der Signale gibt es einen Effekt mit den ich nicht gerechnet habe. Auf einer Oszilloskopröhre kann man keine exakt senkrechte Linie sichtbar machen wenn die X-Ablenkung zeitlinear in Stufen ist. Der Strahl ist vertikal zu schnell um eine ausreichende Energie auf die Leuchtschicht zu bringen. Deshalb waren zunächst nur Punkte statt einer Kurve sichbar. Abhilfe wird durch eine Verzögerung der Y-Spannung erreicht. Dazu dient C12. Jetzt kann man die senkrechten Linien gut sehen. Das sieht aus wie eine 0,3mm schmale Auf- und Entladekurve des Kondensators. Eigentlich nicht besonders schön, aber für diesen Zweck ist es schon OK.
4.) Platine CPP9530 Diese Platine enthält die Bedientasten. Die Tasten können nicht wie sonst üblich mit Widerstände kodiert und mit den internen ADW gelesen werden. Der ADW muß aus zeitlichen Gründen nur für die Meßspannung reserviert bleiben. Und ein Multiplexbetrieb habe ich wegen der Störungen auch nicht gemacht. Blieb also nur noch dieser umständliche digitale Betrieb mit 2 x 4 bit und 10 Leitungen.
Home vorige Seite nächste Seite Home HF-Messplatz S.1 HF-Mess. S.2 HF-Mess. S.3 HF-Mess. S.4 HF-Mess. S.5 HF-Mess. S.6 HF-Mess. S.7 HF-Mess. S.4 HF-Mess. S.4